Home » Student Porfolio » The Art of Space: Student Showcase

This project explores the creation of a commercial interior space inspired by the symbolic power of the dragon—a creature associated with intellect, dignity, enthusiasm, and authority. The design takes on a thematic retail/gallery environment, where cultural storytelling and contemporary design merge to provide an immersive customer experience.
The central theme, “Dragon Spirit”, embodies strength, enlightenment, and transformation. Students translated this abstract inspiration into a tangible environment by incorporating bold design gestures, dramatic colors, and symbolic elements such as dragon sculptures, parasols, and layered textures. The intention was to create an interior that not only attracts visitors but also communicates deeper cultural narratives.
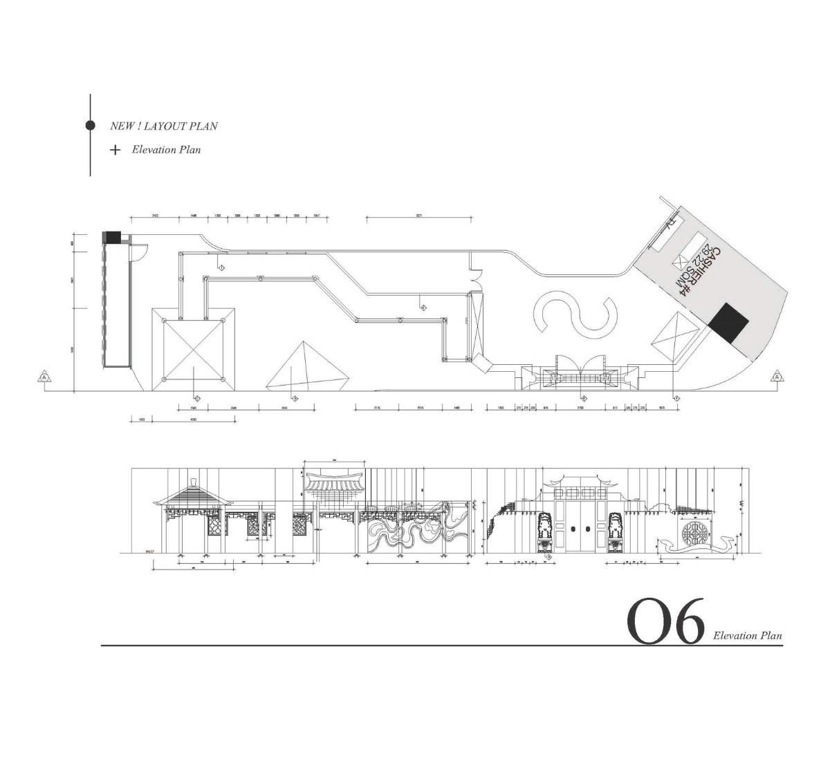
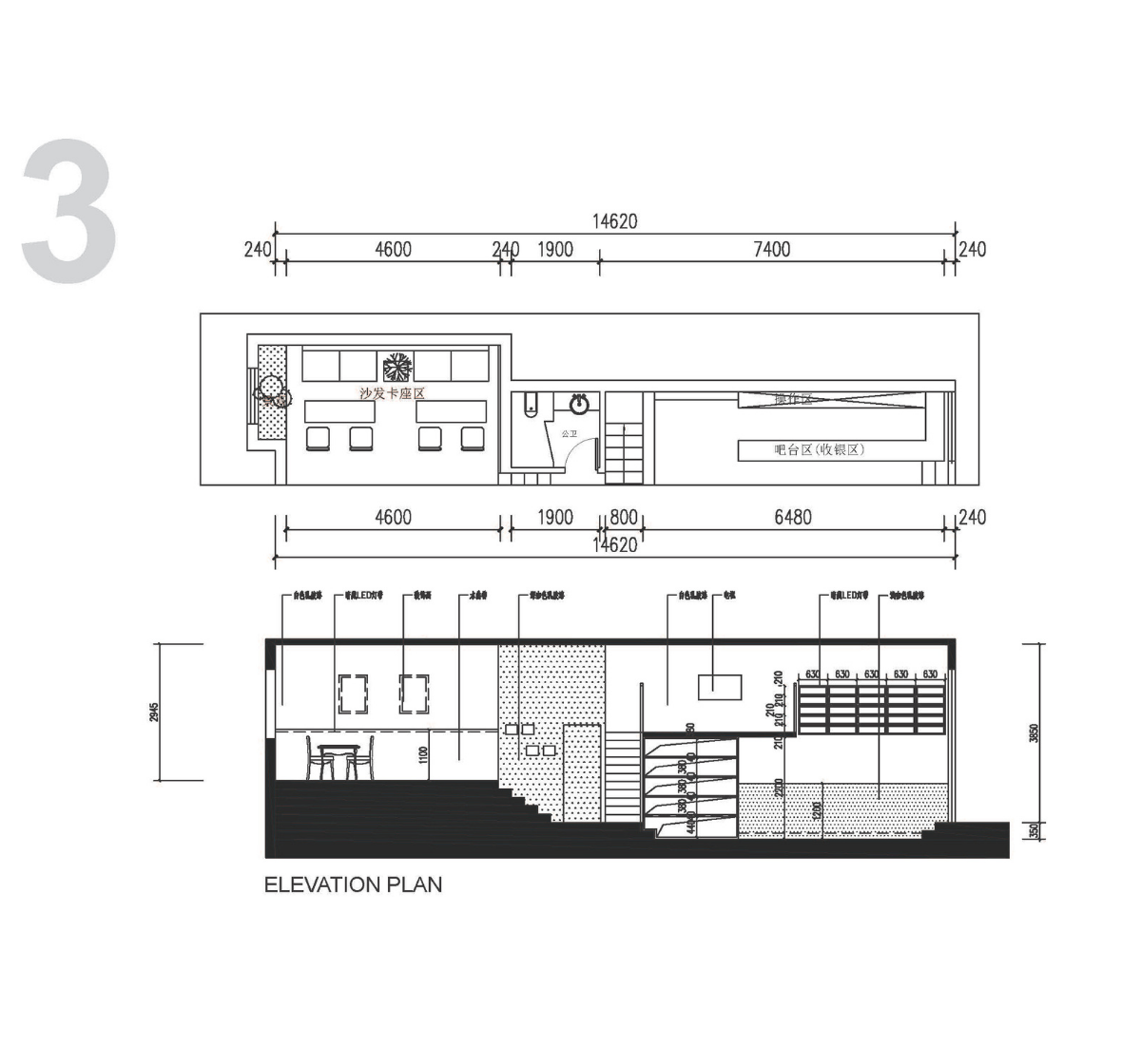
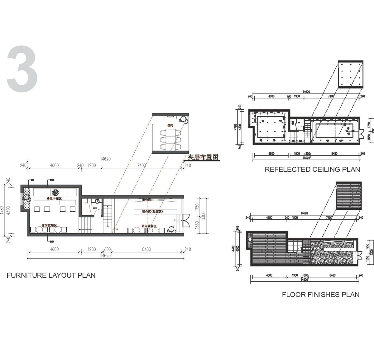
Spatial Planning: The layout guides visitors through a curated journey, with pathways defined by strong circulation flows and focal installations.
Visual Impact: Ceilings, walls, and flooring incorporate contrasting patterns and textures, enhancing the theatrical atmosphere of the space.
Cultural Symbolism: Decorative screens, lantern-like lighting, and dragon-inspired motifs reinforce the spirit of strength and tradition.
Material Selection: Bright green patterned flooring, textured stone-like columns, and rich red accents create a sense of vibrancy and authority.
This project highlights how interior design can go beyond functionality—becoming a platform for storytelling, cultural interpretation, and experiential engagement in a commercial context.

test